Britney Spears

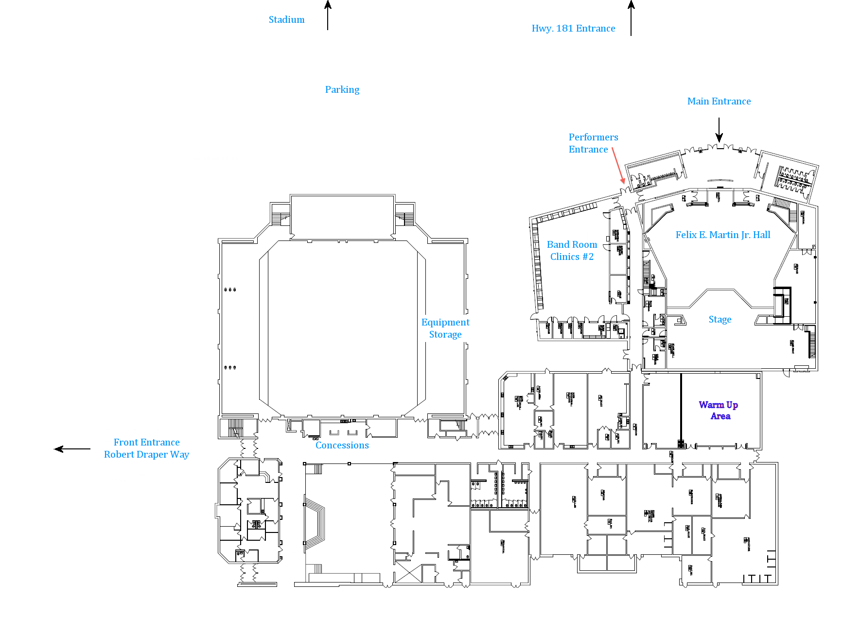
Martin County High School Map

Martin County High School Profile 2020 21 Stuart Fl
www.publicschoolreview.com

Martin County School District Homepage
www.martinschools.org

Coronavirus Florida 238 Martin County Students Now In Quarantine
www.tcpalm.com

Interactive Map Of Martin County Florida High School Attendance Zones
www.zipdatamaps.com

Ky7xyoyhfwzkwm

2535 Se Willoughby Blvd Stuart Fl 34994 Land For Sale And Real Estate Listing Realtor Com
www.realtor.com

Martin county school districts voluntary pre kindergarten program vpk will begin accepting applications for the 2019 2020 school year on february 4 2019.

Martin county high school map. In compliance with federal law martin county schools and the martin county board of education operate and administer all educational and employment programs without discrimination against any person on the basis of race gender. Martin county schools 300 n. Martin county high school.

Maps of school boundaries or school attendance zones. Contact us newsletter internet safety. South fork high school.

Martin county schools earn school of excellence designation. South fork high school. Martin county fl schools school attendance zones boundaries maps.

Williamston nc 27892 phone. Start your journey to becoming a teacher. Martin county school district.

Martin county high school. This web site is intended as a general information site. Martin county school district.

Jensen beach high school. Text messages from district schools. Contact us newsletter internet safety.

Martin county high school every student will graduate college and career capable. 2019 2020 teachers of the year. For more information related to home delivered meals the emergency food pantry 24 hour hotline caregiver counseling case manager navigator and the day medical center call the kane center at 772 223 7826 or visit the kane center website.

School type city students student to teacher ratio free or reduced lunch. Mcsd 2018 19 district report card. Find school attendance zones by address.

Map of martin county fl with school district boundaries. Martin county fl public high schools and martin county fl private high schools are listed below with information to help you choose the best school. Update from martin county health department.

Martin county school district outperforms state traditional high schools see increase in graduation rate. The viewer understands that while all efforts will be made to keep the information on this site current changes and incorrect information are possible. Update from martin county health department.

Find public schools by city county or zip code.

E7fnfsnjrn1xm

Hideaway Unit 7 In Stuart Fl 2 Bedrooms Available
www.rentjungle.com

Nearly 100 Students In Martin County Transition To Remote Learning Wtvx
cw34.com

Unified School District Boundary Maps Stats Indiana
www.stats.indiana.edu

Regional Map Texas High School Athletic Directors Association
www.thsada.com

Home Martin County Schools
www.martin.kyschools.us

2

Hobe Sound Florida Wikipedia
en.wikipedia.org

Home Martin County Schools
www.martin.kyschools.us

Crystal Lake Elementary Homepage
www.martinschools.org

First Day Of School In Martin County Is Tuesday Here S What You Need To Know
www.tcpalm.com

Martin County High School Homepage
www.martinschools.org

Martin County High School Homepage
www.martinschools.org

Home Martin County Property Appraiser
www.pa.martin.fl.us

South Fork High School Homepage
www.martinschools.org

Martin County High School Homepage
www.martinschools.org

South Fork High School Attendance Zone Map And Profile Martin County School District 2020
www.zipdatamaps.com

Martin County High School Profile 2020 21 Stuart Fl
www.publicschoolreview.com

Interactive Map Of Martin County Florida High School Attendance Zones
www.zipdatamaps.com

292 Students 14 Teachers Quarantined In Martin County Over Possible Coronavirus Cases
www.wptv.com

Interactive Map Of Martin County Florida High School Attendance Zones
www.zipdatamaps.com

R J S Pressure Washing Will Do Terracotta Tile Roof Washing Stuart Fl 34994 Usa
rjspressurewashingwilldoterracottatileroofwashing.appv.biz

Martin County High School Homepage
www.martinschools.org

Interactive Map Of Martin County Florida High School Attendance Zones
www.zipdatamaps.com

Https Encrypted Tbn0 Gstatic Com Images Q Tbn 3aand9gcqccxdo13ohtqnagbge Dy3jnox9fuz0xlxhz8w Ix2b9eylva Usqp Cau
encrypted-tbn0.gstatic.com

Maps And Downloads
geoweb.martin.fl.us

School District Maps Department Of Revenue
revenue.ky.gov

Home Martin County Schools
www.martin.kyschools.us

Jensen Beach High School Attendance Zone Map And Profile Martin County School District 2020
www.zipdatamaps.com

2604 Se Willoughby Blvd Stuart Fl 34994 Office Condo For Sale Loopnet Com
www.loopnet.com

Martin County Schools Tentatively Agreed On Aug 25 Start Date
www.tcpalm.com

Martin County Indiana Wikipedia
en.wikipedia.org

Where Do You Draw The Line Determination Of Lincoln County School District Boundaries Daily Leader Daily Leader
www.dailyleader.com

Registering A Student South Fork High School Attendance Zone
www.martinschools.org

Best Places To Live In Martin County Florida
www.bestplaces.net

Martin County High School Profile 2020 21 Stuart Fl
www.publicschoolreview.com

Those That Stay A Civil Rights Pioneer In Martin County N C David Cecelski
davidcecelski.com

Interactive Map Of Martin County Florida High School Attendance Zones
www.zipdatamaps.com

Home Martin County Schools
www.martin.kyschools.us

Martin County West Disc Golf Course Professional Disc Golf Association
www.pdga.com

School Map West Kentucky Percussion Festival
westkypercussion.org

Unified School District Boundary Maps Stats Indiana
www.stats.indiana.edu

School District Maps Department Of Revenue
revenue.ky.gov

Martin County North Carolina Wikipedia
en.wikipedia.org

Indian River State College Chastain Campus Maps
irsc.smartcatalogiq.com

Unified School District Boundary Maps Stats Indiana
www.stats.indiana.edu

21 Martin County High School Students And One Teacher Are Now Transitioning To Quarantine Wtvx
cw34.com

Martin County School District Homepage
www.martinschools.org

Indian River State College Chastain Campus Stuart
irsc.smartcatalogiq.com

Jensen Beach High School Attendance Zone Map And Profile Martin County School District 2020
www.zipdatamaps.com

How Healthy Is Martin County North Carolina Us News Healthiest Communities
www.usnews.com

Maps And Data By School Level
www.browardschools.com

Jensen Beach High School Attendance Zone Map And Profile Martin County School District 2020
www.zipdatamaps.com

Interactive Map Of Martin County Florida High School Attendance Zones
www.zipdatamaps.com

Interactive Map Of Martin County Florida High School Attendance Zones
www.zipdatamaps.com

Old Historical City County And State Maps Of Texas
mapgeeks.org

My School Location My School Location
dcps.duvalschools.org

Aerial Of Martin County High School In 1964 Jacqui Thurlow Lippisch
jacquithurlowlippisch.com

Martin County High School Profile 2020 21 Stuart Fl
www.publicschoolreview.com

Maps And Data Taz Maps
www.browardschools.com

Jensen Beach High School Attendance Zone Map And Profile Martin County School District 2020
www.zipdatamaps.com

School District Maps Department Of Revenue
revenue.ky.gov

School District Maps Department Of Revenue
revenue.ky.gov

Martin County School District Homepage
www.martinschools.org

Stuart Martin County Chamber Of Commerce
www.stuartmartinchamber.org

Ky7xyoyhfwzkwm

Martin County Kentucky Wikipedia
en.wikipedia.org

Unified School District Boundary Maps Stats Indiana
www.stats.indiana.edu

Martin County West High School Sherburn Minnesota
wikimapia.org

Typjq2fvgcdowm

Https Encrypted Tbn0 Gstatic Com Images Q Tbn 3aand9gcsopxfh1qhtlh40dvjdrnopdnwtqs Ubxlh 1nbwffjowk024vf Usqp Cau
encrypted-tbn0.gstatic.com

Home Martin County Schools
www.martin.kyschools.us

Maps And Data By School Level
www.browardschools.com

Martin Fl
www.wisetrail.com

South Fork High School Attendance Zone Map And Profile Martin County School District 2020
www.zipdatamaps.com

Martin County High School Profile 2020 21 Stuart Fl
www.publicschoolreview.com

Maps And Data By School Level
www.browardschools.com

Martin County Schools Administration Center Will Remain On Ocean Boulevard
www.courier-journal.com

Stuart Fl Condo Off Market 1250 Se Parkview Place 1008571
www.beachhouse.com

Martin County High School Profile 2020 21 Stuart Fl
www.publicschoolreview.com

Interactive Map Rate Of High School Seniors Enrolled In Uc Csu Edsource
edsource.org

Palm City Florida Wikipedia
en.wikipedia.org

Stephens County High School
schs-stephenscountyschools-ga.schoolloop.com

Coronavirus Covid 19 Martin County Florida
www.martin.fl.us

Maps And Data By School Level
www.browardschools.com

Martin County Minnesota Wikipedia
en.wikipedia.org

South Fork High School Attendance Zone Map And Profile Martin County School District 2020
www.zipdatamaps.com

Martin County High School Homepage
www.martinschools.org

Martin County High School Profile 2020 21 Stuart Fl
www.publicschoolreview.com

2020 Best School Districts In Florida Niche
www.niche.com

Martin County High School Homepage
www.martinschools.org

2

Home Martin County Schools
www.martin.kyschools.us

2

Martin County High School Homepage
www.martinschools.org

Campus Map And Directions Martin Community College
www.martincc.edu

close